Khách hàng có nhu cầu tư vấn trực tiếp căn hộ & nhận ưu đãi đặc biệt vui lòng để lại SĐT – PENVIET sẽ liên hệ lại.
Phòng khám thẩm mỹ hiện nay không chỉ cần đạt chuẩn chất lượng dịch vụ mà còn phải sở hữu không gian sang trọng để tạo dấu ấn với khách hàng. Dự án cải tạo thiết kế phòng khám thẩm mỹ MAYSON LUXE CLINIC tại Hà Nội được triển khai trên tổng diện tích 242 m2, gồm ba tầng chức năng rõ ràng. Thiết kế theo phong cách Luxury, dự án hướng tới mục tiêu nâng tầm trải nghiệm và khẳng định vị thế của chủ đầu tư Anh Tùng. Đây là mô hình cải tạo hiện đại, phù hợp với những phòng khám đang muốn đổi mới diện mạo mà không thay đổi kết cấu.
Hiện trạng trước thiết kế


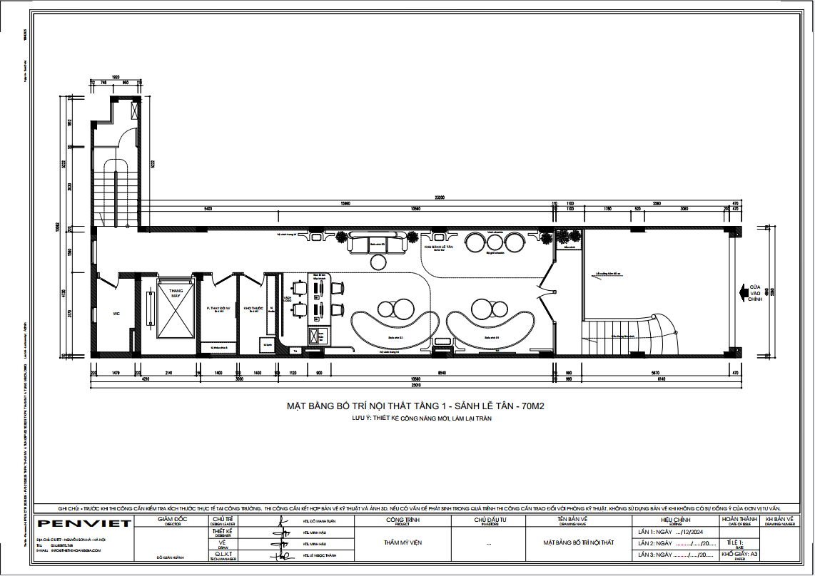
Mặt bằng công năng



Mục lục
- 1. Tổng quan dự án cải tạo, thiết kế phòng khám MAYSON LUXE CLINIC
- 2. Yêu cầu cải tạo và mục tiêu thiết kế phòng khám thẩm mỹ MAYSON LUXE CLINIC
- 3. Phong cách Luxury và cách ứng dụng vào dự án
- 4. Tầng 1 – Khu lễ tân tiếp đón khách
- 5. Ghế chờ và không gian kết nối tại tầng 1
- 6. Hành lang và lối di chuyển thông suốt
- 7. Tầng 2 – Khu vực tư vấn khách
- 8. Tầng 3 – Khu trị liệu chuyên sâu
- 9. Tối ưu không gian khi cải tạo diện tích 242 m2
1. Tổng quan dự án cải tạo, thiết kế phòng khám MAYSON LUXE CLINIC
MAYSON LUXE CLINIC được định vị là một phòng khám thẩm mỹ cao cấp nên yêu cầu về thẩm mỹ và cảm xúc trải nghiệm rất cao. Chủ đầu tư mong muốn sở hữu không gian tinh tế, mang đậm phong cách Luxury nhưng vẫn đảm bảo vận hành khoa học. Dự án được chia thành ba tầng với công năng rõ ràng, phù hợp quy trình chăm sóc và trị liệu chuyên nghiệp. Đây là tiền đề để kiến trúc sư đưa ra phương án thiết kế mạch lạc ngay từ đầu.
Thông tin dự án
- Tên dự án: Phòng khám thẩm mỹ MAYSON LUXE CLINIC
2. Chủ đầu tư: Anh Tùng
- Địa chỉ: Hà Nội
- Diện tích: 242 m2
- Phong cách thiết kế : Luxury
2. Yêu cầu cải tạo và mục tiêu thiết kế phòng khám thẩm mỹ MAYSON LUXE CLINIC
Hiện trạng cũ không còn phù hợp với xu hướng khách hàng trẻ yêu thích sự chỉn chu và sang trọng. Bố cục thiếu sự liên kết và ánh sáng chưa được xử lý tối ưu, gây cảm giác thu hẹp không gian. Chủ đầu tư đề xuất cải tạo toàn diện, từ vật liệu, ánh sáng cho đến cách tổ chức luồng di chuyển. Mục tiêu chính là tạo ra một không gian sang trọng nhưng không cầu kỳ, giữ lại sự tinh giản cần có của một cơ sở y tế thẩm mỹ.


3. Phong cách Luxury và cách ứng dụng vào dự án
Phong cách Luxury trong phòng khám đòi hỏi sự cân bằng giữa sự xa hoa và tính chuyên nghiệp. Các vật liệu có độ phản chiếu cao, đường cong mềm và ánh sáng ấm nhẹ được sử dụng để tạo cảm giác đón tiếp trang trọng. Tông màu kem – vàng hồng được chọn để phù hợp với đối tượng khách hàng nữ. Nhờ cách kết hợp tinh tế, không gian toát lên sự thanh lịch thay vì phô trương.
4. Tầng 1 – Khu lễ tân tiếp đón khách
Tầng 1 là khu vực để lại ấn tượng đầu tiên, vì vậy toàn bộ thiết kế tập trung vào cảm giác sang trọng và sự chào đón. Quầy lễ tân đặt chính giữa với nền tường màu sáng giúp nổi bật thương hiệu MAYSON LUXE CLINIC. Trần kim loại ánh gương cùng hệ đèn pha lê được bố trí thành cụm để tạo điểm nhấn thị giác mạnh. Sự kết hợp này giúp không gian rộng hơn và mang hơi thở của những spa cao cấp.




5. Ghế chờ và không gian kết nối tại tầng 1
Các ghế sofa cong tạo sự mềm mại, giảm góc cạnh để người ngồi cảm nhận sự thư giãn. Bàn trà và decor được lựa chọn nhỏ gọn, phù hợp với diện tích không quá lớn của tầng tiếp đón. Vách tường màu ánh kim giúp ánh sáng lan tỏa đều, tạo chiều sâu cho không gian. Nhờ đó, khu chờ vừa đẹp vừa đảm bảo công năng.
Phòng khám sử dụng hệ trần ánh gương là một giải pháp hiệu quả trong cải tạo. Bề mặt phản chiếu giúp nhân đôi không gian và mang đến cảm giác cao hơn thực tế. Vật liệu inox vàng hồng kết hợp nền tường màu kem tạo sự đồng bộ thẩm mỹ. Ánh sáng trắng vừa phải giúp giữ sự tinh khiết, phù hợp với tiêu chuẩn phòng khám.



6. Hành lang và lối di chuyển thông suốt
Lối đi được xử lý thẳng, tối giản chi tiết để hướng khách vào các phòng chức năng. Sàn màu sáng trải dài tạo cảm giác mượt mà khi di chuyển. Các chi tiết trang trí được hạn chế để không gây rối mắt. Giải pháp tối ưu này giúp khách dễ dàng định hướng, đồng thời nâng tính chuyên nghiệp trong vận hành.
7. Tầng 2 – Khu vực tư vấn khách
Tầng 2 đóng vai trò kết nối giữa tiếp nhận và điều trị. Đây là nơi khách trao đổi trực tiếp với chuyên gia, vì vậy không gian cần thân thiện nhưng vẫn trang trọng. Các bộ bàn ghế được thiết kế đúng tỷ lệ, đảm bảo sự riêng tư cần thiết. Ánh sáng ấm được tăng cường để giữ cảm giác tin tưởng cho khách hàng khi tư vấn.







Không gian tư vấn được chia thành các khu nhỏ nhưng vẫn giữ được sự thông thoáng. Vách ngăn mềm, màu trung tính giúp khách không có cảm giác bị tách biệt. Cách bố trí này phù hợp với các phòng khám có lượng khách lớn nhưng vẫn cần kiểm soát tiếng ồn. Nhờ vậy, quá trình trao đổi được tập trung và hiệu quả hơn.
Bàn tư vấn sử dụng vật liệu bóng nhẹ nhưng không gây chói. Ghế có đường cong ôm lưng giúp khách thoải mái khi ngồi lâu. Màu sắc đồng nhất với tầng 1 giúp tạo nhận diện xuyên suốt. Điều này góp phần nâng cao hình ảnh thương hiệu trong mắt khách hàng.
8. Tầng 3 – Khu trị liệu chuyên sâu
Tầng 3 là nơi yêu cầu cao nhất về tiêu chuẩn y tế. Không gian trị liệu cần tối giản, sạch và dễ vệ sinh. Màu sáng tiếp tục được sử dụng để tăng cảm giác tinh khiết. Đồ nội thất được bo tròn để đảm bảo an toàn khi thao tác.








Ánh sáng tại khu trị liệu được điều chỉnh theo tiêu chuẩn để hỗ trợ kỹ thuật viên thao tác chính xác. Đèn âm trần, tông sáng lạnh đảm bảo độ chiếu đều và không gây nhấp nháy. Đây là yếu tố quan trọng khi cải tạo các phòng trị liệu thẩm mỹ. Khách hàng sẽ cảm thấy yên tâm hơn khi sử dụng dịch vụ.
Các tủ lưu trữ được bố trí âm tường để giảm chiếm diện tích. Thiết bị y tế được đặt gần nguồn điện và hệ thống xử lý giúp thao tác nhanh hơn. Không gian thoáng giúp kỹ thuật viên di chuyển linh hoạt. Tất cả góp phần nâng hiệu quả vận hành cho phòng khám.
Phong cách Luxury giúp phương án thiết kế phòng khám thẩm mỹ MAYSON LUXE CLINIC tăng giá trị hình ảnh và thu hút nhóm khách hàng trung cao cấp. Tính sang trọng khiến khách cảm nhận sự chuyên nghiệp ngay khi bước vào. Màu sắc, vật liệu và ánh sáng phối hợp tạo ra trải nghiệm trọn vẹn. Đây là yếu tố giúp phòng khám tạo sự khác biệt.
9. Tối ưu không gian khi cải tạo diện tích 242 m2
Dù diện tích khá lớn, việc chia ba tầng công năng rõ ràng giúp phòng khám vận hành khoa học. Biện pháp mở rộng thị giác tại tầng 1 giúp giảm cảm giác chật khi đông khách. Tầng 2 và tầng 3 giữ lối thiết kế mạch lạc để đảm bảo tính thống nhất. Cách tối ưu hợp lý này giúp tận dụng trọn vẹn diện tích sẵn có.







Phương án đề xuất không yêu cầu thay đổi nhiều kết cấu, giúp tiết kiệm chi phí thi công. Việc chọn vật liệu bền và ít bám bụi giúp giảm chi phí bảo trì dài hạn. Tính đồng bộ trong thiết kế cũng giúp chủ đầu tư dễ dàng mở rộng quy mô trong tương lai. Đây là giải pháp bền vững cho mô hình phòng khám thẩm mỹ.
Không gian sau cải tạo thể hiện rõ tiêu chí sang trọng và chuyên nghiệp. Từng tầng đều thể hiện chức năng riêng nhưng vẫn giữ được sự liên kết về thẩm mỹ. Hình ảnh thương hiệu MAYSON LUXE CLINIC được thể hiện nhất quán qua bảng hiệu, vật liệu và ánh sáng. Đây là một dự án hoàn thiện cả về thẩm mỹ lẫn công năng.
Phương án thiết kế phòng khám thẩm mỹ MAYSON LUXE CLINIC là ví dụ điển hình cho dự án cải tạo phòng khám theo phong cách Luxury, mang lại trải nghiệm cao cấp ngay từ khi khách bước vào. Các giải pháp thiết kế giúp tối ưu diện tích, tăng hiệu quả vận hành và nâng tầm hình ảnh thương hiệu. Chủ đầu tư đang muốn cải tạo phòng khám có thể tham khảo mô hình này để đạt được hiệu quả tương tự.











