Khách hàng có nhu cầu tư vấn trực tiếp căn hộ & nhận ưu đãi đặc biệt vui lòng để lại SĐT – PENVIET sẽ liên hệ lại.
Mẫu thiết kế phòng khám đa khoa HƯNG HÀ tại Vĩnh Phúc
Dự án thiết kế phòng khám đa khoa HƯNG HÀ tại Vĩnh Phúc (Phú Thọ sau sáp nhập) là bài toán cải tạo không gian y tế đang hoạt động, đồng thời nâng cấp mô hình từ chuyên khoa lên đa khoa quy mô lớn. Với diện tích 900m² và tổ chức 3 tầng chức năng, thiết kế tập trung vào trải nghiệm bệnh nhân, tối ưu vận hành và nâng tầm hình ảnh thương hiệu. Phong cách hiện đại được lựa chọn để đảm bảo tính bền vững, dễ mở rộng và phù hợp tiêu chuẩn y tế hiện hành. Bài viết hướng đến các chủ đầu tư đang cân nhắc cải tạo, nâng cấp phòng khám với cách tiếp cận thực tế, rõ ràng theo từng khu vực.
Hiện trạng trước thiết kế


Mặt bằng công năng



Mục lục
Thông tin dự án
- Tên dự án: phòng khám đa khoa HƯNG HÀ
- Chủ đầu tư: anh Hưng – anh Sỹ – Chị Hà
- Địa chỉ: Vĩnh Phúc (Phú Thọ sau sát nhập)
- Diện tích: 900m2
- Phong cách thiết kế : Hiện đại
- Mô tả về điểm nhấn của dự án : Phòng khám đang hoạt động, thiết kế lại cho đẹp & nâng cấp từ chuyên khoa lên đa khoa.


Tổng quan định hướng thiết kế phòng khám đa khoa HƯNG HÀ
Phòng khám đa khoa HƯNG HÀ do anh Hưng, anh Sỹ và chị Hà làm chủ đầu tư được cải tạo trong bối cảnh vẫn đang vận hành. Đây là yêu cầu khó, đòi hỏi thiết kế không chỉ đẹp mà còn khoa học, hạn chế xáo trộn quy trình khám chữa bệnh. Định hướng chung là tái cấu trúc không gian theo chiều dọc ba tầng, phân luồng bệnh nhân rõ ràng, giảm giao cắt và nâng cao an toàn y tế.
Phong cách hiện đại thể hiện qua đường nét gọn, màu sắc kiểm soát và vật liệu dễ vệ sinh. Tông xanh trắng được sử dụng xuyên suốt, tạo cảm giác sạch sẽ và tin cậy. Ánh sáng được tính toán đồng đều, kết hợp chiếu sáng tự nhiên và đèn kỹ thuật. Với chủ đầu tư, đây là giải pháp cân bằng giữa thẩm mỹ, chi phí và khả năng vận hành lâu dài.
Điểm mạnh của dự án nằm ở việc chuyển đổi mô hình hiệu quả. Từ một phòng khám chuyên khoa, HƯNG HÀ được nâng cấp thành phòng khám đa khoa đầy đủ chức năng, đáp ứng nhu cầu khám chữa bệnh tổng hợp tại khu vực. Không gian sau cải tạo cho thấy sự thay đổi rõ rệt về hình ảnh, đồng thời nâng cao năng lực tiếp nhận bệnh nhân.
Thiết kế biển bảng mặt tiền và hình ảnh thương hiệu
Khu vực biển bảng mặt tiền là điểm chạm đầu tiên với bệnh nhân và người dân xung quanh. Thiết kế tập trung làm nổi bật tên PHÒNG KHÁM ĐA KHOA HƯNG HÀ cùng các chuyên khoa chính. Màu xanh chủ đạo kết hợp chữ nổi sáng giúp nhận diện tốt cả ban ngày lẫn ban đêm. Bố cục mặt tiền theo chiều đứng phù hợp công trình 3 tầng, tạo cảm giác vững chắc và chuyên nghiệp.


Hệ thống bảng hiệu được phân tầng thông tin rõ ràng. Tầng trên nhấn mạnh thương hiệu phòng khám và tiêm chủng vaccine. Tầng giữa làm nổi bật các chuyên khoa như răng hàm mặt. Tầng trệt bố trí bảng chào, thông tin pháp lý và giờ làm việc. Cách tổ chức này giúp bệnh nhân dễ nắm bắt dịch vụ ngay từ bên ngoài.
Về góc nhìn cải tạo, mặt tiền mới đã khắc phục hạn chế của công trình cũ. Hình ảnh trở nên hiện đại, đồng bộ với không gian nội thất bên trong. Đây là yếu tố quan trọng giúp chủ đầu tư nâng tầm giá trị thương hiệu, tạo lợi thế cạnh tranh tại khu vực Vĩnh Phúc – Phú Thọ.
Tổ chức công năng 3 tầng khoa học, tối ưu vận hành
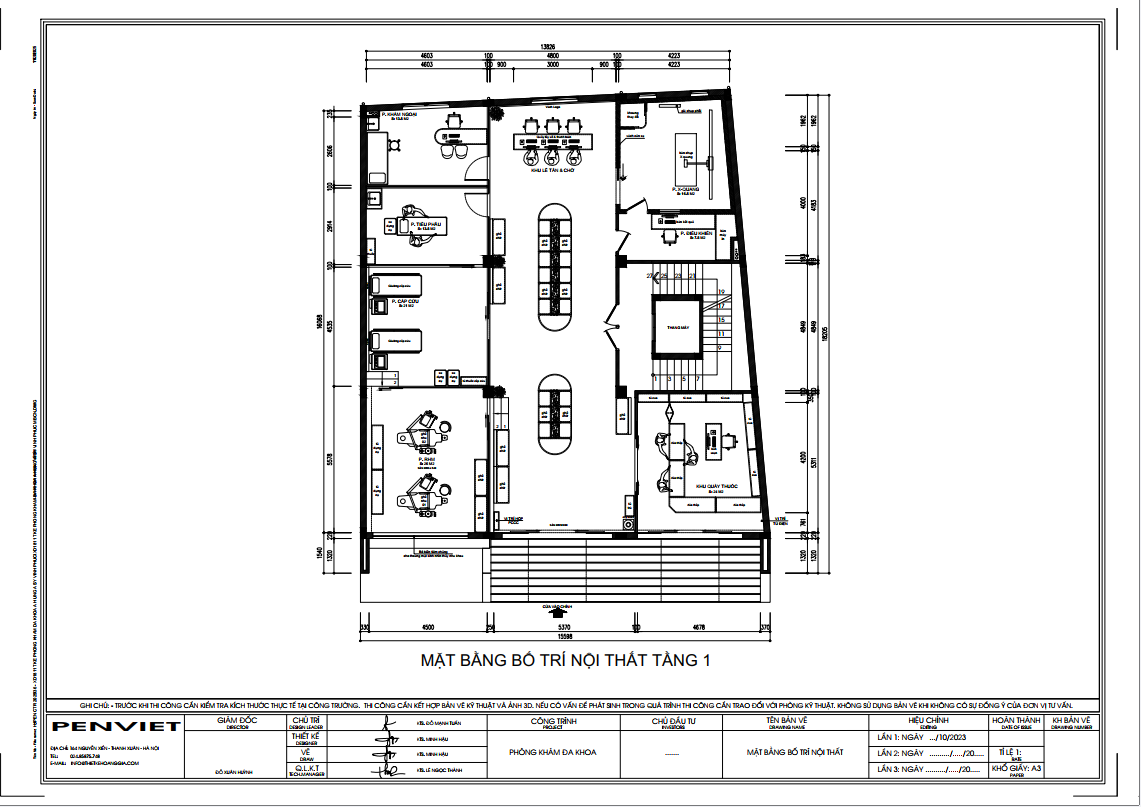
Tầng 1 của phòng khám
Tầng 1 được xem là tầng có mật độ sử dụng cao nhất. Thiết kế ưu tiên lối tiếp cận thuận tiện, giảm quãng đường di chuyển cho bệnh nhân. Khu lễ tân và khu chờ đặt ở vị trí trung tâm, không gian mở, dễ quan sát. Ghế chờ bố trí hợp lý, tạo cảm giác thoải mái và không quá tải.




























Các phòng chức năng tại tầng 1 gồm phòng tiểu phẫu, phòng khám ngoại, phòng cấp cứu, phòng răng hàm mặt, phòng X-quang và quầy thuốc. Việc đặt phòng cấp cứu và X-quang tại tầng trệt giúp xử lý nhanh các tình huống khẩn cấp. Quầy thuốc được bố trí gần lối ra, thuận tiện cho bệnh nhân sau khi thăm khám.
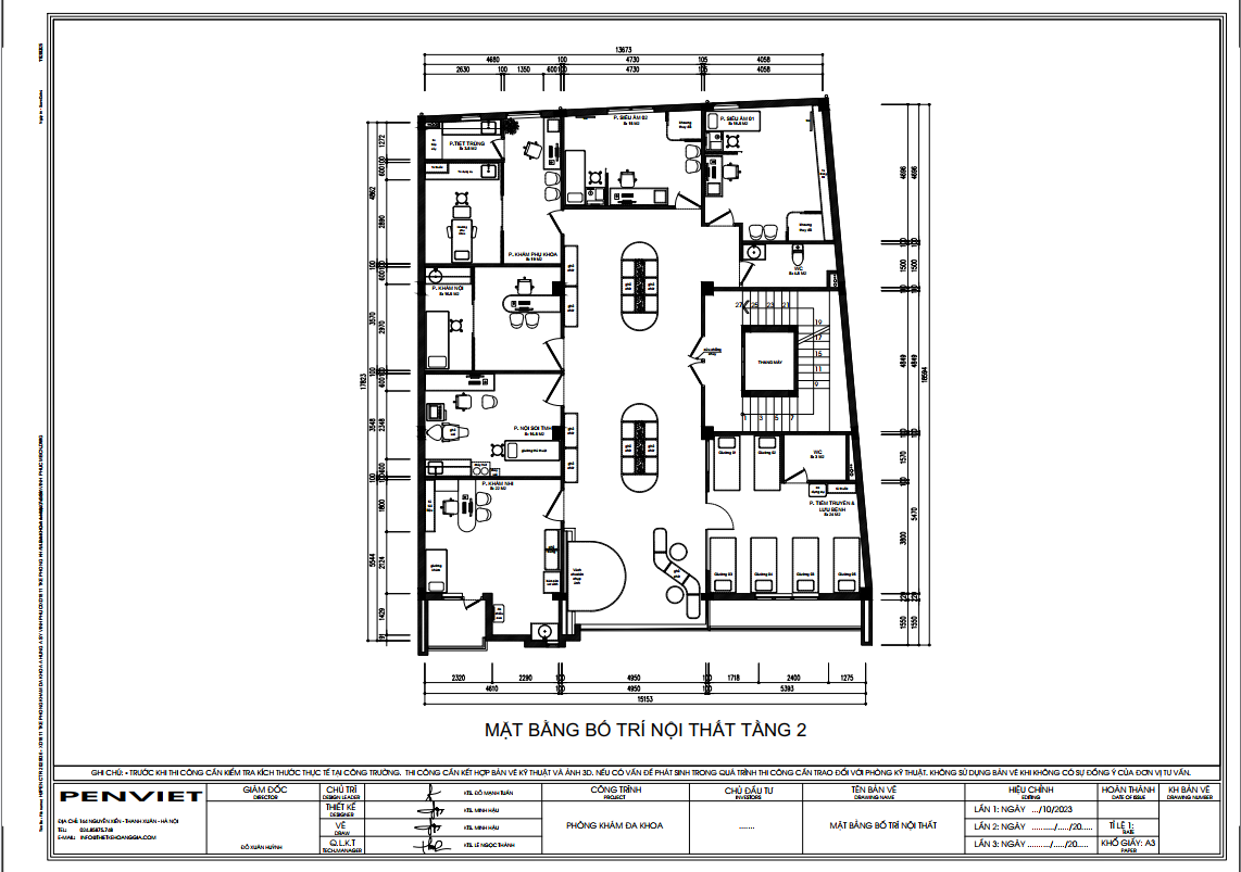
Tầng 2 của phòng khám
Tầng 2 đóng vai trò là khu điều trị và thăm khám chuyên sâu. Khu chờ bệnh nhân được mở rộng, ánh sáng dịu, hạn chế căng thẳng. Các phòng khám nội, siêu âm, tiêm chủng, nội soi tai mũi họng, nhi khoa và phòng tiệt trùng được bố trí theo trục hành lang rõ ràng. Cách tổ chức này giúp giảm giao thoa giữa các nhóm bệnh nhân, đặc biệt là trẻ em.



















































Tầng 3 của phòng khám
Tầng 3 tập trung các chức năng kỹ thuật và điều trị chuyên biệt. Khu chờ bệnh nhân tiếp tục được duy trì để phân luồng hợp lý. Các phòng xét nghiệm, phòng lấy mẫu, phòng khám y học cổ truyền, phòng điều trị YHCT, phòng tiệt trùng, phòng nội soi, phòng da liễu, phòng hồi tỉnh và phòng vi sinh được sắp xếp theo quy trình khép kín. Thiết kế này giúp nâng cao hiệu quả vận hành và đảm bảo tiêu chuẩn kiểm soát nhiễm khuẩn.



















































Với chủ đầu tư, việc phân tầng công năng rõ ràng giúp dễ quản lý nhân sự, thiết bị và dòng bệnh nhân. Đây là yếu tố then chốt khi nâng cấp từ chuyên khoa lên đa khoa quy mô 900m².
Điểm mạnh thiết kế và giá trị mang lại cho chủ đầu tư
Điểm mạnh đầu tiên của dự án phòng khám đa khoa HƯNG HÀ là khả năng cải tạo trong điều kiện đang hoạt động. Thiết kế được triển khai theo từng giai đoạn, hạn chế gián đoạn dịch vụ. Điều này giúp chủ đầu tư duy trì doanh thu và giữ chân bệnh nhân cũ.
Thứ hai là tính đồng bộ từ mặt tiền đến nội thất. Hình ảnh thương hiệu được xuyên suốt qua màu sắc, vật liệu và cách bố trí không gian. Bệnh nhân dễ nhận diện, dễ ghi nhớ và tạo cảm giác tin cậy khi quay lại. Đây là lợi thế lớn trong bối cảnh cạnh tranh giữa các cơ sở y tế tư nhân.
Thứ ba là tối ưu công năng và luồng di chuyển. Mỗi tầng đảm nhiệm nhóm chức năng riêng, giảm tình trạng chồng chéo. Nhân viên y tế làm việc hiệu quả hơn, bệnh nhân ít phải chờ đợi. Với diện tích 900m², cách tổ chức này giúp khai thác tối đa không gian mà không gây bí bách.
Cuối cùng là khả năng mở rộng trong tương lai. Thiết kế hiện đại cho phép bổ sung thiết bị, mở thêm dịch vụ mà không cần cải tạo lớn. Đây là giá trị lâu dài mà chủ đầu tư nhận được khi đầu tư đúng ngay từ giai đoạn cải tạo ban đầu.
Dự án phòng khám đa khoa HƯNG HÀ là ví dụ điển hình cho bài toán cải tạo không gian y tế đang hoạt động và nâng cấp mô hình hiệu quả. Với thiết kế hiện đại, phân tầng chức năng rõ ràng và hình ảnh thương hiệu mạnh, công trình mang lại giá trị bền vững cho chủ đầu tư. Đây là hướng đi phù hợp cho các phòng khám tại Vĩnh Phúc, Phú Thọ đang muốn mở rộng quy mô và nâng cao chất lượng dịch vụ.

















